這座房子位于新加坡,就在一條主路和岔路構成節點的車站前,它憑借水泥和柚木外觀在這樣繁忙的地方脫穎而出。
這座房子由Aamer建筑事務所設計,他們結合原始混凝土和來自巴厘島的堅硬柚木屏風創造出一種獨特的風格。
通過在住宅上使用柚木框架屏風,他們將房子從嚴酷的城市環境中解脫出來,同時也不影響自然視覺光線和通風。
水泥邊界墻和郁郁蔥蔥的景觀讓業主有私人空間在不被街上人看到的情況下享受泳池和主樓。
內部是一個有著雙層挑高和巨大風扇的開放式客廳,這樣的設計讓空氣更好循環,在炎熱氣候里是很必須的。
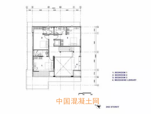
在主生活區上,是一個夾層,有個小圖書館和課桌。
最上層是主人房,木質天花板和休息區都很棒!
↓一層平面圖
↓二層平面圖
↓閣樓平面圖
















